Verkocht onder voorbehoud:Mosveen 24, 7894 CX Zwartemeer - Foto
Verkocht onder voorbehoud
+31

Mosveen 24 7894 CX Zwartemeer € 237.500,- k.k.

  • Woonhuis
  • 5 kamers
  • 4 slaapkamers
  • 1 badkamer
  • Bouwjaar 1975
  • 150 m² perceeloppervlakte
  • 126 m² gebruiksoppervlakte
  • A Energielabel A

Beschrijving

Zoek je een instapklare woning met verrassend veel ruimte en oog voor duurzaamheid? Deze uitgebouwde tussenwoning aan de Mosveen in Zwartemeer biedt precies dat én meer. Met 126 m² aan woonoppervlakte en een hoogwaardig afwerkingsniveau is dit de ideale gezinswoning, zeker met zijn 4 volwaardige slaapkamers. Achter de woning staat een stenen berging met grote aangebouwde overkapping.

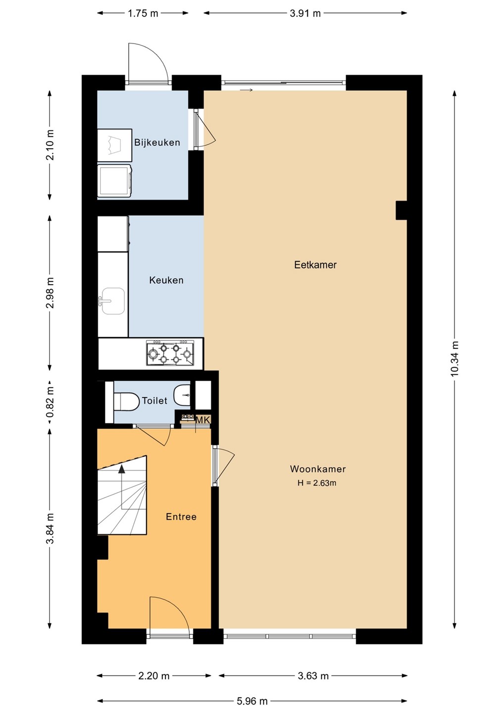
Indeling

Hal met toilet, trapopgang en meterkast. Vergrote woonkamer met schuifpui, open keuken, bijkeuken.

Eerste verdieping

Overloop met toilet, 3 slaapkamers, badkamer.

Tweede verdieping

Bereikbaar via vaste trap. Overloop met cv-opstelling, 4e slaapkamer.

Bijzonderheden

Waarom dit jouw nieuwe thuis is:
• Ruimte & Licht: De vergrote woonkamer is een heerlijke plek om te ontspannen. Dankzij de grote schuifpui loopt binnen naadloos over in de tuin. De open keuken is voorzien van een keukenblok met alle benodigde inbouwapparatuur.
• Vier Slaapkamers: Op de eerste verdieping vind je drie prima slaapkamers. De tweede verdieping is bereikbaar via een vaste trap en beschikt over een volwaardige vierde slaapkamer.
• Lage Energielasten: De woning is toekomstbestendig met 12 zonnepanelen (2022), kunststof kozijnen met HR++ glas, elektrische rolluiken en een efficiënte cv-ketel uit 2017.
• Onderhoudsvriendelijk: Geen schilderwerk aan de buitenzijde! De voor- en achtergevel zijn bekleed met Keralit en de aanbouw is in 2024 voorzien van een nieuw plat dak.
• Buitenleven: Achter de woning geniet je van een stenen berging en een riante overkapping, perfect voor lange zomeravonden, ongeacht het weer en gelegen nabij scholen en het natuurgebied Bargerveen.
________________________________________
De feiten op een rij:
• Woonoppervlakte: 126 m²
• Duurzaamheid: 12 zonnepanelen, 2 airco's & volledig HR++ glas. Energielabel A.
• Onderhoud: Keralit gevels en nieuw dak aanbouw (2024)
• Extra’s: Vaste trap naar zolder, schuifpui en luxe overkapping
Kortom: Een ruime, degelijke en energiezuinige woning op een fijne locatie in Zwartemeer. Spullen pakken en verhuizen maar!

Kaart

Kenmerken

Overdracht

Referentienummer
06070
Vraagprijs
€ 237.500,- k.k.
Status
Verkocht onder voorbehoud
Aanvaarding
In overleg
Aangeboden sinds
Vrijdag 27 februari 2026
Laatste wijziging
Woensdag 8 april 2026

Bouw

Type object
Woonhuis, eengezinswoning, tussenwoning
Soort bouw
Bestaande bouw
Bouwperiode
1975
Dakbedekking
Dakpannen
Type dak
Zadeldak
Isolatievormen
Dakisolatie
Dubbel glas
Muurisolatie
Vloerisolatie

Oppervlaktes en inhoud

Perceeloppervlakte
150 m²
Woonoppervlakte
126,3 m²
Inhoud
445 m³
Oppervlakte externe bergruimte
9,6 m²

Indeling

Aantal bouwlagen
3
Aantal kamers
5 (waarvan 4 slaapkamers)
Aantal badkamers
1 (en 2 aparte toiletten)

Locatie

Ligging
Aan rustige weg
In woonwijk
Nabij school
Nabij snelweg
Nabij winkelcentrum

Energieverbruik

Energielabel
A

CV ketel

CV ketel
Vaillant
Warmtebron
Gas
Bouwjaar
2017
Combiketel
Ja
Eigendom
Eigendom

Uitrusting

Warm water
CV-ketel
Verwarmingssysteem
Centrale verwarming
Ventilatie methode
Natuurlijke ventilatie
Keukenvoorzieningen
Inbouwapparatuur
Badkamervoorzieningen
Inloopdouche
Toilet
Wastafelmeubel
Glasvezelaansluiting aanwezig
Ja

Kadastrale gegevens

Kadastrale aanduiding
Emmen M 1316
Perceeloppervlakte
54 m²
Omvang
Geheel perceel
Kadastrale aanduiding
Emmen M 1209
Perceeloppervlakte
150 m²
Omvang
Geheel perceel
Eigendomsituatie
Eigen grond

Blijf als eerste op de hoogte van nieuwe woningen!

🏠 Volg Duijndam Makelaardij op Facebook en mis geen kans!

Volg ons