Nieuw in verkoop:Van Echtenskanaal NZ 115, 7891 AE Klazienaveen - Foto
Nieuw in verkoop
+68

Van Echtenskanaal NZ 115 7891 AE Klazienaveen € 465.000,- k.k.

  • Woonhuis
  • 4 kamers
  • 3 slaapkamers
  • 2 badkamers
  • Bouwjaar 1939
  • 938 m² perceeloppervlakte
  • 140 m² gebruiksoppervlakte
  • C Energielabel C

Beschrijving

Karakteristiek wonen aan het water: Gemoderniseerd, levensloopbestendig en een zee aan ruimte!

Bent u op zoek naar een woning die sfeer ademt, maar waar u niet hoeft in te leveren op comfort? Deze prachtige vrijstaande woning uit 1939 combineert het beste van twee werelden. Gelegen op een royaal perceel van maar liefst 938 m², direct aan vaar- en viswater en op loopafstand van het gezellige centrum van Klazienaveen, biedt dit object alles wat u zich kunt wensen.

Modern comfort in een historisch jasje
Hoewel de woning haar karakteristieke uitstraling heeft behouden, is deze door de jaren heen grondig gemoderniseerd. Zo zijn in 2014 de houten vloer van de woonkamer vervangen door een geïsoleerde betonvloer en voorzien van vloerverwarming (woonkamer, keuken, hal en badkamer). Met een gloednieuwe CV-ketel (2024), 18 zonnepanelen en nagenoeg volledige isolatie beschikt de woning over een gunstig Energielabel C. De onderhoudsvriendelijke kunststof kozijnen met HR++ glas maken het plaatje compleet.

Levensloopbestendig wonen
Uniek aan deze woning is de doordachte indeling met een slaap- en badkamer op de begane grond. Dit maakt de woning uitermate geschikt voor senioren die voorbereid willen zijn op de toekomst, of voor wie simpelweg houdt van het gemak van alles op de begane grond.

Indeling

Binnenkomst via de hal met toegang tot de handige provisiekelder, de meterkast en de trapopgang. De lichte woonkamer is een heerlijke plek om te vertoeven, mede door de sfeervolle erker, de schuifpui naar de tuin en de gezellige pelletkachel. De gesloten keuken biedt een fijne plek om te koken. In de praktische bijkeuken vindt u de CV-opstelling en extra kastruimte. Via de tussenhal bereikt u het toilet, de achteruitgang en de royale slaapkamer met aangrenzende badkamer.

Eerste verdieping

De overloop geeft toegang tot twee ruime, lichte slaapkamers. Daarnaast bevindt zich hier een tweede badkamer, uitgerust met een douche, wastafel en toilet. Ideaal voor gasten of de rest van het gezin.

Bijzonderheden

Buitenleven op z'n best
De buitenruimte is werkelijk een paradijs. De diepe achtertuin is prachtig aangelegd met diverse terrassen, waardoor er altijd een plekje in de zon of schaduw te vinden is.
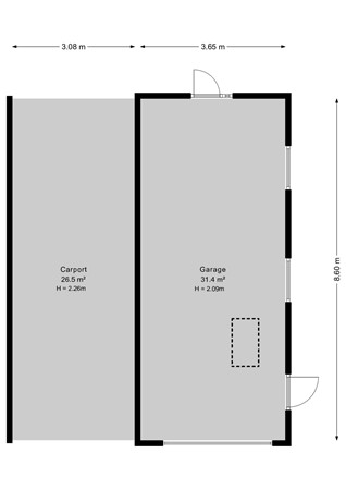
• Garage & Carport: Een ruime vrijstaande stenen garage (met spouwmuur en kap) en een aangebouwde carport bieden volop ruimte voor auto’s, hobby’s of opslag.
• De blokhu: Achter in de tuin staat een vrijstaande houten blokhut met eigen pelletkachel. De perfecte plek voor een "man-cave", atelier of gewoon voor de fijne avonduurtjes met vrienden.
• Ligging: Gelegen aan vaar- en viswater, dus gooi gerust een hengeltje uit!

Bijzonderheden en sterke punten:
• Bouwjaar 1939, perceeloppervlakte 938 m².
• Woonoppervlakte 140 m².
• Volledig voorzien van kunststof kozijnen met HR++ glas.
• 18 zonnepanelen en CV-ketel uit 2024.
• Plat dak vernieuwd en geïsoleerd in 2010.
• Begane grond grotendeels voorzien van vloerverwarming.
• Prachtige ligging nabij het centrum en aan het water.
Bent u klaar om te genieten van rust, ruimte en modern wooncomfort op een toplocatie in Klazienaveen? Plan dan snel een bezichtiging in!

Kaart

Kenmerken

Overdracht

Referentienummer
06078
Vraagprijs
€ 465.000,- k.k.
Status
Nieuw in verkoop
Aanvaarding
In overleg
Aangeboden sinds
Vrijdag 10 april 2026

Bouw

Type object
Woonhuis, eengezinswoning, vrijstaande woning
Soort bouw
Bestaande bouw
Bouwperiode
1939
Dakbedekking
Bitumen
Dakpannen
Type dak
Zadeldak
Isolatievormen
Dakisolatie
Dubbel glas
Muurisolatie
Vloerisolatie

Oppervlaktes en inhoud

Perceeloppervlakte
938 m²
Woonoppervlakte
140 m²
Inhoud
538 m³
Oppervlakte overige inpandige ruimten
6,61 m²
Oppervlakte externe bergruimte
72,85 m²
Oppervlakte gebouwgebonden buitenruimte
0,6 m²

Indeling

Aantal bouwlagen
3
Aantal kamers
4 (waarvan 3 slaapkamers)
Aantal badkamers
2

Locatie

Ligging
Aan vaarwater
Dichtbij openbaar vervoer
Nabij school
Nabij snelweg
Nabij winkelcentrum

Energieverbruik

Energielabel
C

CV ketel

CV ketel
Vaillant
Warmtebron
Gas
Bouwjaar
2024
Combiketel
Ja
Eigendom
Eigendom

Uitrusting

Warm water
CV-ketel
Verwarmingssysteem
Centrale verwarming
Pelletkachel
Glasvezelaansluiting aanwezig
Ja
Heeft zonnepanelen
Ja

Kadastrale gegevens

Kadastrale aanduiding
Emmen I 12331
Perceeloppervlakte
41 m²
Omvang
Geheel perceel
Eigendomsituatie
Eigen grond
Kadastrale aanduiding
Emmen I 6398
Perceeloppervlakte
835 m²
Omvang
Geheel perceel
Eigendomsituatie
Eigen grond
Kadastrale aanduiding
Emmen I 9043
Perceeloppervlakte
62 m²
Omvang
Geheel perceel
Eigendomsituatie
Eigen grond

Brochure(s) en overige bijlagen

Brochure Van Echtenskanaal NZ 115 - Klazienaveen.pdf Download

Blijf als eerste op de hoogte van nieuwe woningen!

🏠 Volg Duijndam Makelaardij op Facebook en mis geen kans!

Volg ons