Verkocht onder voorbehoud:De Wieken 26, 7891 KK Klazienaveen - Foto
Verkocht onder voorbehoud
+33

De Wieken 26 7891 KK Klazienaveen € 262.500,- k.k.

  • Woonhuis
  • 5 kamers
  • 4 slaapkamers
  • 1 badkamer
  • Bouwjaar 1975
  • 185 m² perceeloppervlakte
  • 110 m² gebruiksoppervlakte
  • C Energielabel C

Beschrijving

Hoekwoning met 4 slaapkamers, serre en garagebox nabij het centrum van Klazienaveen. Ben je op zoek naar een ruime, goed onderhouden hoekwoning op een fijne locatie dichtbij het centrum van Klazienaveen? Dan is deze woning aan De Wieken absoluut een bezichtiging waard! Deze volledig geïsoleerde hoekwoning biedt maar liefst vier slaapkamers, een moderne keuken (2023), een heerlijke serre, een vrijstaande stenen berging én een garagebox met parkeergelegenheid ervoor. Een ideale gezinswoning met volop ruimte, comfort en praktische voorzieningen.

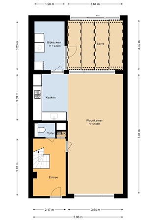
Indeling

Via de entree kom je in de hal met toilet, meterkast en trapopgang. De lichte en ruime woonkamer profiteert van extra zijramen dankzij de hoekligging, wat zorgt voor een prettige lichtinval.
De open keuken is in 2023 vernieuwd en uitgevoerd in een moderne stijl met diverse inbouwapparatuur – een heerlijke plek om te koken en te tafelen. Aansluitend vind je de bijkeuken met achteringang en de serre, een fijne extra leefruimte waar je het hele jaar door kunt genieten van het buitengevoel. Vanuit hier bereik je de achtertuin.

Eerste verdieping

Op de eerste verdieping bevinden zich drie ruime slaapkamers en de badkamer.

Tweede verdieping

Via een vaste trap bereik je de tweede verdieping met de vierde slaapkamer – ideaal als extra slaapkamer, werkruimte of hobbykamer. Hier bevindt zich tevens de opstelling van de cv-ketel (2014).

Bijzonderheden

De woning beschikt over een verzorgde tuin met voldoende privacy.
Daarnaast is er een vrijstaande stenen berging voor fietsen en opslag én een garagebox, met parkeermogelijkheid direct voor de deur – wel zo praktisch!

Kenmerken op een rij
• Hoekwoning
• 4 slaapkamers
• Volledig geïsoleerd
• Moderne keuken (2023)
• Serre
• Vrijstaande stenen berging
• Garagebox met parkeergelegenheid
• Energielabel C
• Cv-ketel uit 2014
• Gelegen nabij het centrum van Klazienaveen
Een comfortabele en complete gezinswoning op een gunstige locatie met alle voorzieningen binnen handbereik. Maak snel een afspraak voor een bezichtiging en laat je verrassen door de ruimte en mogelijkheden van deze woning!

Kaart

Kenmerken

Overdracht

Referentienummer
06069
Vraagprijs
€ 262.500,- k.k.
Status
Verkocht onder voorbehoud
Aanvaarding
In overleg
Aangeboden sinds
Dinsdag 17 februari 2026
Laatste wijziging
Vrijdag 13 maart 2026

Bouw

Type object
Woonhuis, eengezinswoning, hoekwoning
Soort bouw
Bestaande bouw
Bouwperiode
1975
Dakbedekking
Bitumen
Dakpannen
Type dak
Zadeldak
Isolatievormen
Dakisolatie
Dubbel glas
Muurisolatie
Vloerisolatie

Oppervlaktes en inhoud

Perceeloppervlakte
185 m²
Woonoppervlakte
110 m²
Inhoud
426 m³
Oppervlakte overige inpandige ruimten
6,7 m²
Oppervlakte externe bergruimte
38,97 m²

Indeling

Aantal bouwlagen
3
Aantal kamers
5 (waarvan 4 slaapkamers)
Aantal badkamers
1 (en 1 apart toilet)

Locatie

Ligging
Aan rustige weg
Dichtbij openbaar vervoer
Nabij school
Nabij snelweg
Nabij winkelcentrum

Energieverbruik

Energielabel
C

CV ketel

CV ketel
Nefit
Warmtebron
Gas
Bouwjaar
2014
Combiketel
Ja
Eigendom
Eigendom

Uitrusting

Warm water
CV-ketel
Verwarmingssysteem
Centrale verwarming
Keukenvoorzieningen
Inbouwapparatuur
Badkamervoorzieningen
Douche
Toilet
Wastafelmeubel
Parkeergelegenheid
Garagebox
Glasvezelaansluiting aanwezig
Ja
Heeft een garage
Ja
Heeft rolluiken
Ja

Kadastrale gegevens

Kadastrale aanduiding
Emmen M 1664
Perceeloppervlakte
11 m²
Omvang
Geheel perceel
Eigendomsituatie
Eigen grond
Kadastrale aanduiding
Emmen M 767
Perceeloppervlakte
20 m²
Omvang
Geheel perceel
Eigendomsituatie
Eigen grond
Kadastrale aanduiding
Emmen M 1658
Perceeloppervlakte
154 m²
Omvang
Geheel perceel
Eigendomsituatie
Eigen grond

Blijf als eerste op de hoogte van nieuwe woningen!

🏠 Volg Duijndam Makelaardij op Facebook en mis geen kans!

Volg ons