Nieuw in verkoop:Oosterdiep OZ 44, 7881 CT Emmer-Compascuum - Foto
Nieuw in verkoop
+38

Oosterdiep OZ 44 7881 CT Emmer-Compascuum € 235.000,- k.k.

  • Woonhuis
  • 4 kamers
  • 3 slaapkamers
  • 1 badkamers
  • Bouwjaar 1963
  • 340 m² perceeloppervlakte
  • 85 m² gebruiksoppervlakte
  • E Energielabel E

Beschrijving

Bezichtigingen vinden plaats op 16 februari 2025

Deze woning zoekt een nieuwe eigenaar die van deze woning zijn eigen nieuw stulpje wil maken. Aan vaar- en viswater staat deze leuke twee-onder-een-kap woning op een perceel van ca. 340 m². De woning heeft een woonoppervlakte van 85 m², is voorzien van kunststof kozijnen, dak- en glasisolatie en 3 slaapkamers op de 1e verdieping. De keuken, badkamer en toilet zijn wat verouderd, maar nog steeds bruikbaar. Moderniseren is hier van toepassing, maar dat kan geheel naar eigen smaak gedaan worden, dat geldt ook voor de achtertuin. Achter de woning staat een geïsoleerde en verwarmde houten garage met een aangebouwde carport. De woning wordt niet meer bewoond en aanvaarding kan per direct. Nieuwgierig geworden? Bel dan voor een bezichtiging en kom langs bij deze woning.

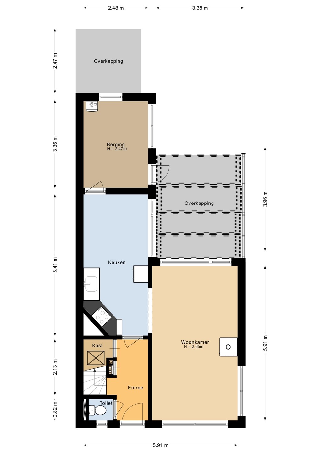
Indeling

Hal met toilet, meterkast en trapopgang. Woonkamer met houtkachel, gesloten keuken, bijkeuken met cv-opstelling.

Eerste verdieping

Overloop, 3 slaapkamers waarvan 2 met vaste kastruimte, badkamer.

Tweede verdieping

Bereikbaar via een vlizotrap. Zolderberging.

Overige verdiepingen

Ruime provisiekelder

Bijzonderheden

De woning is gebouwd in 1963 en staat op een perceel van ca. 340 m² eigen grond.
Woonoppervlakte is 85 m².
De woning is voorzien van dakisolatie en dubbele beglazing, energielabel E.
Ca. 10 jaar geleden is het dak geïsoleerd, zijn de dakpannen vervangen en goten vernieuwd.
De cv-ketel is in 2024 geïnstalleerd en is eigendom.
Achter de woning is een overkapping aangebouwd welke afsluitbaar is, eventueel geschikt voor honden en/of katten.
Vrijstaande geïsoleerde houten garage met verwarming en een aangebouwde carport van damwandprofiel.
De woning is per direct te aanvaarden.

De woning wordt "as-is-where-is" verkocht.

Kaart

Kenmerken

Overdracht

Referentienummer
06068
Vraagprijs
€ 235.000,- k.k.
Status
Nieuw in verkoop
Aanvaarding
Direct
Aangeboden sinds
Donderdag 29 januari 2026

Bouw

Type object
Woonhuis, eengezinswoning, twee onder een kap woning
Soort bouw
Bestaande bouw
Bouwperiode
1963
Dakbedekking
Bitumen
Dakpannen
Type dak
Zadeldak
Isolatievormen
Dakisolatie
HR-glas
Vloerisolatie

Oppervlaktes en inhoud

Perceeloppervlakte
340 m²
Woonoppervlakte
85 m²
Inhoud
380 m³
Oppervlakte overige inpandige ruimten
7,33 m²
Oppervlakte externe bergruimte
16,07 m²
Oppervlakte gebouwgebonden buitenruimte
19,56 m²

Indeling

Aantal bouwlagen
3 (en 1 kelder)
Aantal kamers
4 (waarvan 3 slaapkamers)
Aantal badkamers
1 (en 1 apart toilet)

Locatie

Ligging
Aan rustige weg
Aan vaarwater
Dichtbij openbaar vervoer

Energieverbruik

Energielabel
E

CV ketel

CV ketel
Nefit
Warmtebron
Gas
Bouwjaar
2024
Combiketel
Ja
Eigendom
Eigendom

Uitrusting

Warm water
CV-ketel
Verwarmingssysteem
Centrale verwarming
Houtkachel
Ventilatie methode
Natuurlijke ventilatie
Parkeergelegenheid
Vrijstaande houten garage
Glasvezelaansluiting aanwezig
Ja
Heeft een garage
Ja

Kadastrale gegevens

Kadastrale aanduiding
Emmen E 7383
Perceeloppervlakte
340 m²
Omvang
Geheel perceel
Eigendomsituatie
Eigen grond

Blijf als eerste op de hoogte van nieuwe woningen!

🏠 Volg Duijndam Makelaardij op Facebook en mis geen kans!

Volg ons