Onder bod:Rehweide 14, 49716 Meppen - Foto
Onder bod
+33

Rehweide 14 49716 Meppen € 225.000,- k.k.

  • Woonhuis
  • 5 kamers
  • 4 slaapkamers
  • 2 badkamers
  • Bouwjaar 1967
  • 1.205 m² perceeloppervlakte
  • 152 m² gebruiksoppervlakte
  • G Energielabel G

Beschrijving

In het plaatsje Bokeloh in de gemeente Meppen staat deze vrijstaande woning op een groot perceel van 1.205 m². De woning is in 1967 gebouwd, heeft 152 m² woonoppervlakte, is levensloopbestendig en voorzien van 2 slaapkamers en douche op de begane grond en ook nog eens 2 slaapkamers en een badkamer op de 1e verdieping. Verwarming geschiedt door centrale verwarming (gas). Achter de woning staan een grote garage met berging en overkapping. Het riviertje “de Hase” en een leuk bosperceel zijn in de directe omgeving van deze woning, vanuit hier kan je fijne wandelingen maken. Het centrum van Meppen is binnen enkele autominuten bereikbaar.

Indeling

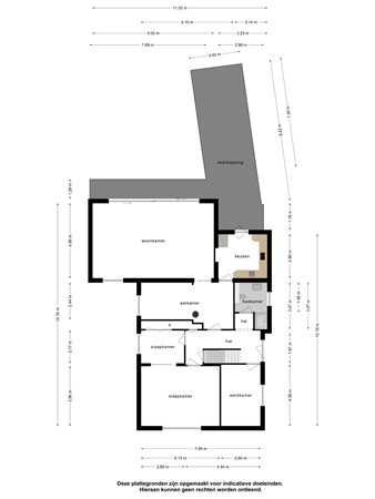
Hal met gastentoilet (inclusief douche) en trapopgang. Eetkamer met speksteenkachel, tuingerichte woonkamer, gesloten keuken, ouder slaapkamer met kleedkamer, slaapkamer/kantoor.

Eerste verdieping

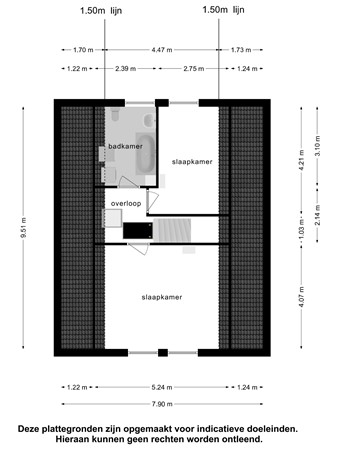
Overloop, 2 royale slaapkamers, eenvoudige badkamer met lig/douchebad, wastafel en toilet.

Tweede verdieping

Bereikbaar via vlizotrap. Ruime bergzolder

Overige verdiepingen

Kelder: Hal met trapopgang, provisieruimte, hobbyruimte (biljart) met cv-ketel.

Bijzonderheden

De woning is gebouwd in 1967 en heeft een woonoppervlakte van 152 m².
Vanuit de tuingerichte woonkamer is toegang tot het ruime terras.
Het is een levensloopbestendige woning met 2 slaapkamers en een douche op de begane grond.
Er zijn 2 slaapkamers en een badkamer op de 1e verdieping.
In de kelder is een provisieruimte en hobbyruimte (biljart).
In de hobbyruimte hangt de cv-ketel van het merk Wolf (bj. 2005, eigendom).
De gehele woning heeft kunststof kozijnen met dubbele beglazing.
Het platte dak van de woning is in 2014 vernieuwd en geïsoleerd.
De woning moet zowel binnen als buiten hier en daar opgeknapt worden
Er is een ruime vrijstaande garage met overkapping en aangebouwde berging.
Royale tuin met een sproei-installatie en bron.
Royale oprit met plek voor zeker 3 auto’s.
De woning staat op een groot perceel van 1.205m² (erfpacht, deze is niet afkoopbaar).
De erfpacht kost ca. € 1.049,= euro per jaar, wordt elke 3 jaar geïndexeerd en loopt tot 31-10-2062
Het centrum van Meppen met vele winkels, supermarkten, uitgaansleven, verenigingen, overdekt zwembad enz. is binnen enkele autominuten bereikbaar.

Makelaarscourtage voor de koper is 3% van de koopsom incl. 19% MwSt (btw)

Kaart

Kenmerken

Overdracht

Referentienummer
06040
Vraagprijs
€ 225.000,- k.k.
Status
Onder bod
Aanvaarding
In overleg
Aangeboden sinds
Vrijdag 16 mei 2025
Laatste wijziging
Dinsdag 16 december 2025

Bouw

Type object
Woonhuis, eengezinswoning, vrijstaande woning
Soort bouw
Bestaande bouw
Bouwperiode
1967
Dakbedekking
Dakpannen
Type dak
Zadeldak
Isolatievormen
Dakisolatie
Spouwmuren

Oppervlaktes en inhoud

Perceeloppervlakte
1.205 m²
Woonoppervlakte
152 m²
Inhoud
735 m³
Oppervlakte overige inpandige ruimten
38,18 m²
Oppervlakte externe bergruimte
40,68 m²
Oppervlakte gebouwgebonden buitenruimte
46,91 m²

Indeling

Aantal bouwlagen
3 (en 1 kelder)
Aantal kamers
5 (waarvan 4 slaapkamers)
Aantal badkamers
2

Locatie

Ligging
Aan rustige weg

Energieverbruik

Energielabel
G

CV ketel

CV ketel
Wolf
Warmtebron
Gas
Bouwjaar
2005
Eigendom
Eigendom

Uitrusting

Aantal parkeerplaatsen
2
Warm water
CV-ketel
Verwarmingssysteem
Centrale verwarming
Badkamervoorzieningen Badkamer 2
Ligbad
Toilet
Wastafel

Kadastrale gegevens

Kadastrale aanduiding
Apeldorn A 132/1
Perceeloppervlakte
1.205 m²
Omvang
Geheel perceel
Eigendomsituatie
Erfpacht
Lasten
€ 905,- per jaar (variabel)

Brochure(s) en overige bijlagen

Rehweide 14, 49716 MEPPEN (1) Download

Blijf als eerste op de hoogte van nieuwe woningen!

🏠 Volg Duijndam Makelaardij op Facebook en mis geen kans!

Volg ons